EboCAD Plan

«Mit EboCAD zeichnen Sie Ihre Installationspläne auf einfachste Weise, in kürzester Zeit und in höchster Qualität.»

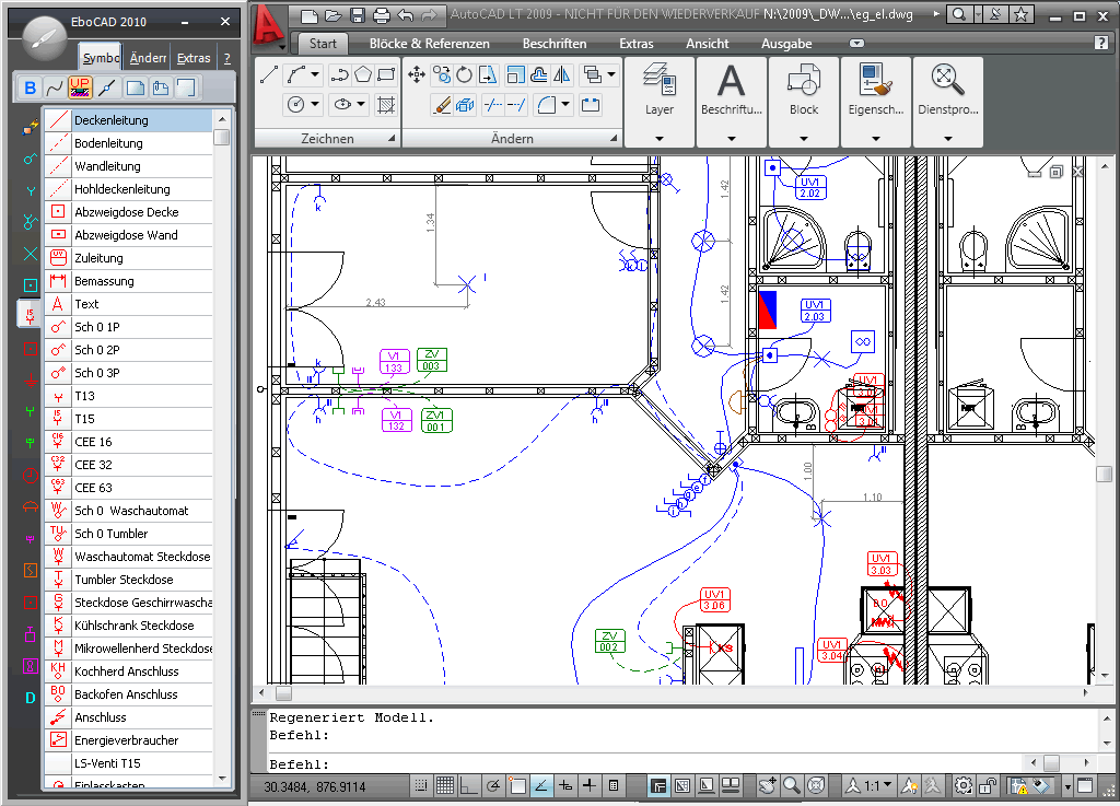
EboCAD + AutoCAD & LT, endlich CAD-Zeichnen ohne komplizierte Programmbedienung. Die Entwickler von EboCAD haben eine praxisorientierte und bedienerfreundliche Oberfläche geschaffen, welche jedem CAD-Anwender das bisher komplizierte und mühsame Zeichnen zum Kinderspiel werden lässt.

 

Dank EboCAD sind Sie in der Lage, AutoCAD & LT ohne lange Schulung zu nutzen. Nach einer kurzen Einführung können Sie Installationspläne und Schemas selbständig zeichnen.

 

EboCAD kann mit Autodesk AutoCAD, AutoCAD LT, ecscad und Topobase verwendet werden. Durch die Verwendung von Standard Autodesk Software ist Ihre Investition auch für die Zukunft gesichert und kann zusätzlich durch weitere Applikationen ergänzt werden.

 

Wieso EboCAD?

  • Vollständig in AutoCAD & LT integrierte Oberfläche
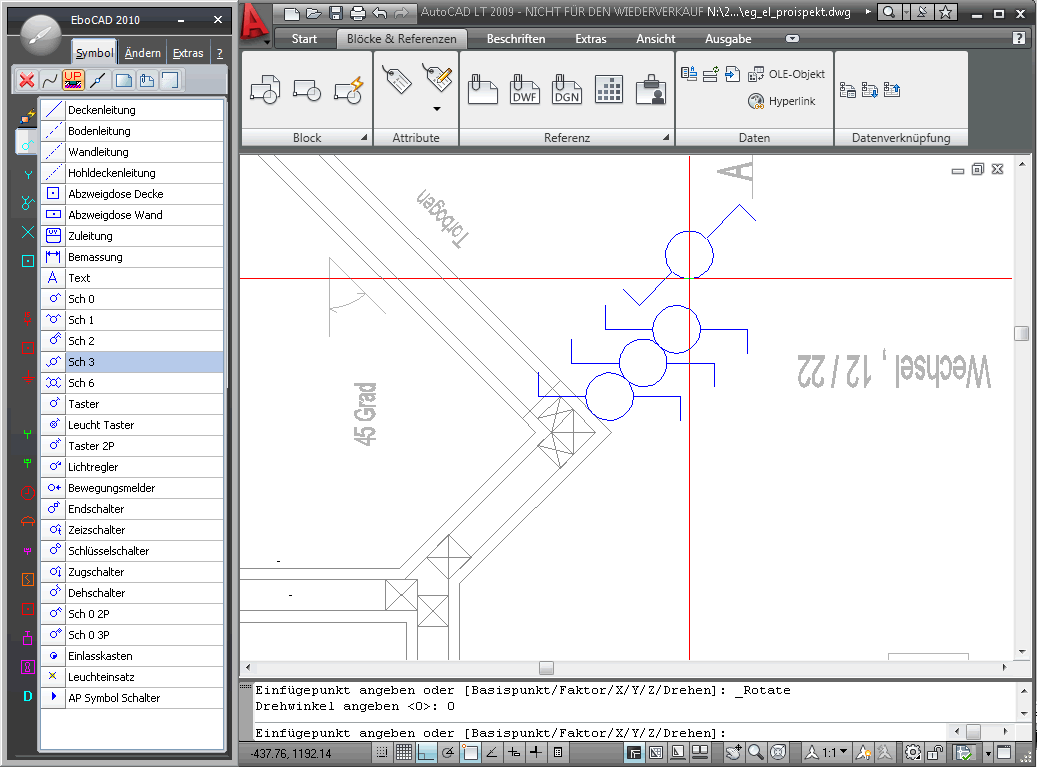
  • Dynamisches Ändern der Symbole (z.B. Wechseln von Schalter Sch 3 nach Taster etc.)
  • Automatische Symbolausrichtung an Wänden
  • Automatisches Ausrichten der Beschriftung bei Symbolen
  • PDF, JPG, DWG Dateien als Referenz hinterlegen
  • IEC-Symbolbibliothek gemäss electrosuisse
  • Legende mit den im Plan enthaltenen Symbolen und den entsprechenden Stückzahlen
  • Automatische freidefinierbare Layersteuerung (Profile für Unique, ZKB, UBS, vorhanden)
  • Als Memory-Stick-Version lieferbar (keine Installation, keine Konfiguration, auf jedem PC sofort einsetzbar: einfach Memory- Stick einstecken und arbeiten).
  • Netzwerkfähig, Daten können zentral gespeichert werden
  • Kopieren, spiegeln und drehen von Installationenteilen oder ganzen Installationen
  • Erweiterbar mit Symbolbibliotheken wie Sanitär Heizung usw.
  • Symbolmanager für Hersteller- und Team-Symbole.
  • Intelligente Kanal Funktion
  • Referenz (Grundriss) direkt im Installationsplan bearbeiten
  • PDF-, DWG- und DXF-Datenexport
  • Schnittstellen
  • CAD-Datenaustausch im AutoCAD 15-2014 und DXF-Format
  • PDF Import und Export. Öffnen und bearbeiten Sie PDF-Dateien so einfach wie DWG-Dateien. Vektorisierte PDF-Dateien konvertiert EboCAD direkt in DWG-Dateien.
  • Excel-Stückliste mit allen Elektrosymbolen. Excel-Liste mit Zuleitungen
  • konfigurierbare Textdateien

 

Für wen ist EboCAD?

  • EboCAD ist die CAD-Lösung zu AutoCAD + AutoCAD LT für Ingenieurbüros, Planer und ausführende Firmen, die Elektroinstallationen planen.

 

Voraussetzung für EboCAD?

AutoCAD oder AutoCAD LT ab Version 2009

 

 

Bedienerfreundliche Oberfläche

Dynamische Symbole

Dynamisches Ändern der Symbole (z.B. Wechseln von Taster nach Schalter Sch 6 etc.)

Abstand zu Objekt

Symbole in einem bestimmten Abstand zu einem Objekt platziere

Anzahl auf Objekt

Symbole in einer bestimmten Anzahl auf einem Objekt platzieren

Mehrfaches Einfügen

Aktuelles Symbol ist immer am Cursor und kann so bequem mehrmals platziert werden (Zeitersparnis 10–50%).

Anreihen Symbole

Symbole (z. B. Lampen) können so einfach in einem bestimmten Abstand zu Wänden in Zeilen und Spalten im Raum verteilt platziert werden.

Abstand auf Objekt

Symbole in einem bestimmten Abstand auf einem Objekt platzieren

Eboplan GmbH      Chramenweg 3     CH-8634 Hombrechtikon

Tel. +41 44 930 77 17    Fax +41 44 930 77 83

info@eboplan.ch